Portfolio
Central Square Regeneration, Alaminos
Central Square Regeneration, Alaminos
Location
Larnaka, Cyprus
Sector
Traditional Buildings
Services Provided
Architectural & Interior Design, Civil & Structural Engineering, Construction Management
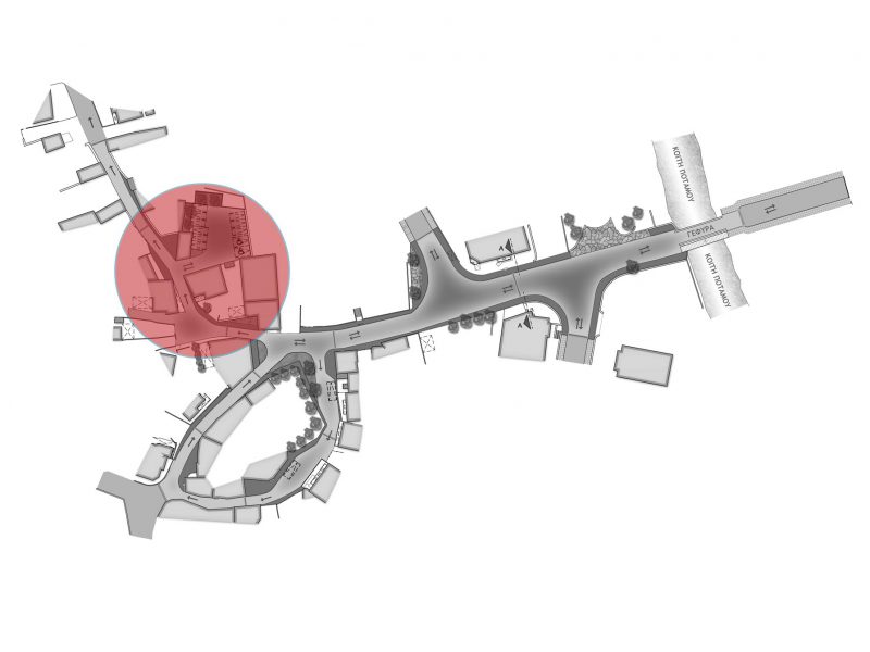
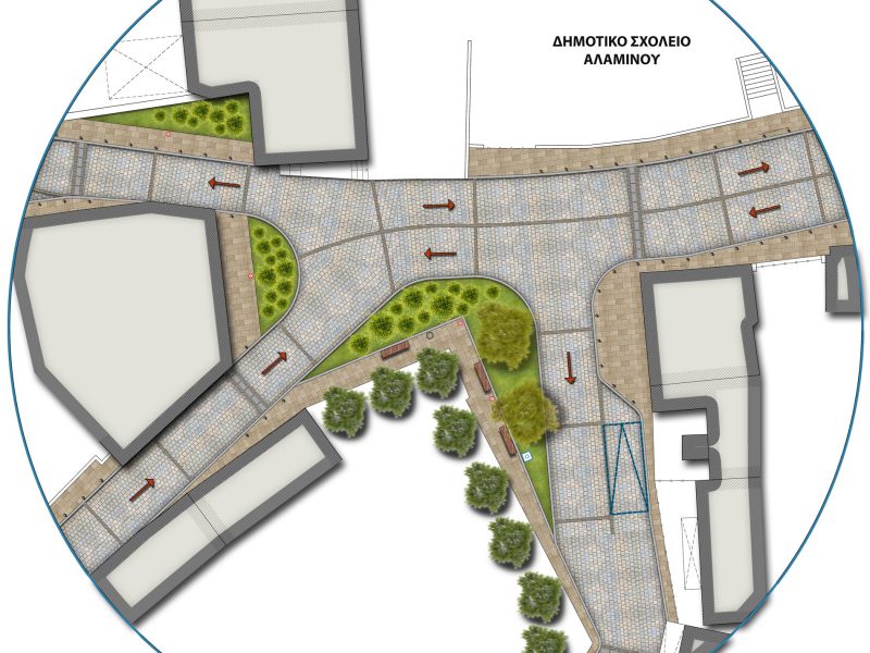
The project is located in the central part of the village of Alaminos in the Larnaca district.
It involves the design and paving of the existing road network, the re-organisation of pedestrian circulation and other public spaces, landscaped areas, urban furniture, traffic control and planting.
It also involves the restoration/renovation of a small traditional building into an information centre.









